Добро пожаловать на http://vipplan.ru

Випплан Нахабино - это тысячи проектов домов в нашем каталоге!

Вы всегда сможете найти для себя проект дома вашей мечты! Даже если этого не случилось, мы готовы в любую минуту предложить проект индивидуального дома.

Забыли пароль?
Вы еще не регистрировались?

Перейдите по ссылке ниже на страницу регистрации.

Регистрация...

Внимание!!!

В проектную документацию могут быть внесены изменения любой сложности, в соответствии в Вашими пожеланиями!

Полезные статьи

Как сделать мансардную крышу

Мансарда - обеспечивает дополнительную жилую площадь одно- или двухуровневой постройке за счет подкровельного пространства и, благодаря видимым элементам конструкции крыши, выполняет немаловажную эстетическую функцию. Дома с мансардой достаточно распространены в Московской области благодаря своей привлекательности и неповторимости. ...

Применение свайных фундаментов

Сваи представляют собой длинные стержни, погруженные глубоко в грунт или изготовленные непосредственно в грунте. Покупные сваи с одной стороны имеют заостренный конец, который забивается в почву с помощью специальной техники. Установка свай, изготовленных своими руками, предполагают бурение скважин, армирование и заливку бетонного раствора. ...

Проекты домов и коттеджей > Каталог проектов домов > Проект разноуровневого дома с мансардой и подвалом Vg2350

Проект разноуровневого дома с мансардой и подвалом Vg2350

Проект разноуровневого дома с мансардой и подвалом
Зарегистрируйтесь

Проект № Vg2350


Техническое описание
Общая площадь: 240.43 м2
Жилая площадь: 103.7 м2
Высота здания: 9.08 м
Размеры дома: 12.42м×11.82м
Кол-во комнат: 6
Цокольный этаж: есть
Гараж: нет
Мансарда: есть

Kонструкция
Фундамент: монолитная ж/б плита
Перекрытия: сборные ж/б плиты
Материал стен: Газобетон

Архитектурный раздел
Конструктивный раздел
АР+КР - 64 000 (Со скидкой 20%)
Проект индивидуального одноэтажного разноуровневого жилого дома с мансардой и подвалом с размерами здания 12,42 x 11,82 м. Фундамент – монолитная ж/б плита, частично ж/б лента, фундаментные стены из блоков ФБС Наружные стены – газобетонные блоки Внутренние стены – газобетонные блоки Перегородки – газобетонные блоки Пол подвала - пол по монолитной плите, пол 1 этажа (частично) - пол по грунту. Межэтажные перекрытия - сборные плиты перекрытия. Крыша двускатная. Кровля – металлочерепица. Окна — деревянные.
Генплан застройки участка / Паспорт проекта 7000 руб / 10000 руб
Инженерный раздел (полный) 120000 руб
Смета на строительство 60000 руб
Теплотехнический расчет материалов стен Бесплатно
Стоимость проекта со незначительнми изменениями 74000 руб
Стоимость проекта со средними изменениями* 92000 руб
Стоимость проекта со значительными изменениями** 96800 руб

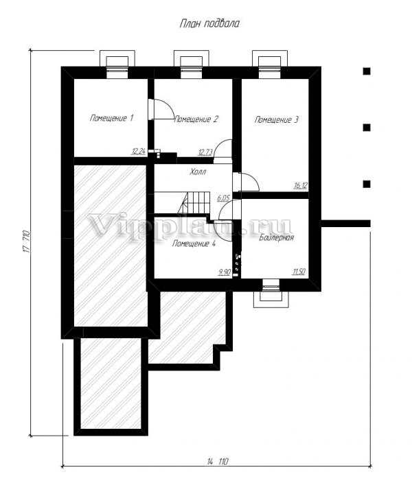
План цокольного этажа


Холл — 6,05 м2
Помещение1 — 12,24 м2
Помещение2 — 12,73 м2
Помещение3 — 16,12 м2
Помещение4 — 9,9 м2
Бойлерная — 11,5 м2

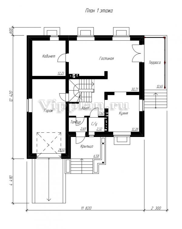
План первого этажа


Тамбур — 2,69 м2
Холл — 7,62 м2
С/у — 2,32 м2
Гостиная — 30,71 м2
Кухня — 12,28 м2
Кабинет — 12,23 м2
Гараж — 25,5 м2

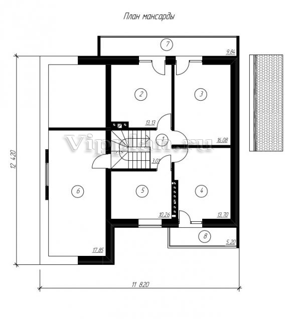
План мансардного этажа


Помещение1 — 3,01 м2
Помещение2 — 13,13 м2
Помещение3 — 16,08 м2
Помещение4 — 13,7 м2
Помещение5 — 10,26 м2
Помещение6 — 17,85 м2
Проект разноуровневого дома с мансардой и подвалом Проект разноуровневого дома с мансардой и подвалом Проект разноуровневого дома с мансардой и подвалом Проект разноуровневого дома с мансардой и подвалом

Модификации проектов

Внесение изменений и привязка к участку строительства

В любой из проектов от компании VIPplan - Нахабино по вашему желанию могут быть внесены изменения в материалы стен, материалы наружной отделки дома, а также будет произведена адаптация проекта под конкретный регион строительства (с учетом грунтов региона, геологических особенностей вашего участка и местных климатических условий) - БЕСПЛАТНО !!! (кроме проектов со скидкой и проектов наших партнеров).

Любой из проектов, размещенных на сайте nahabino.vipplan.ru мы можем выполнить из требуемых вам строительных материалов: ячеистый бетон (газобетон, пеноблок), керамоблок, кирпич, шлакоблок, бетонный блок, дерево (брус, клееный брус), каркасная технология (деревянный каркас, металлокаркас (ЛСТК)).

Фасад дома и его наружную отделку так же возможно выполнить с применением различных облицовочных материалов: структурной штукатурки, (с утеплителем и без), сайдингом (пластиковый или металлосайдинг), фиброплитами, кирпича.

 
6 Избранные
проекты

Доставка проектов по России: Москва (Московская область), Санкт-Петербург (Ленинградская область), Краснодар, Ростов-на-Дону, Ставрополь, Сочи, Волгоград, Новосибирск, Белгород, Брянск, Воронеж, Саратов, Хабаровск, Астрахань, Нальчик, Владикавказ, Екатеринбург, Тюмень, Самара, Нижний Новгород, Казань, Пермь, Уфа, Челябинск, Красноярск, Ханты-Мансийск, Иркутск, Курган, Оренбург, Омск, Томск, Барнаул, Новокузнецк, Кемерово, Абакан, Чита, Якутск, Южно-Сахалинск, Петропавловск-Камчатский и страны ближнего зарубежья: Белоруссия, Украина, Казахстан